




Features:
Under contract
Removable House for Sale : One piece move
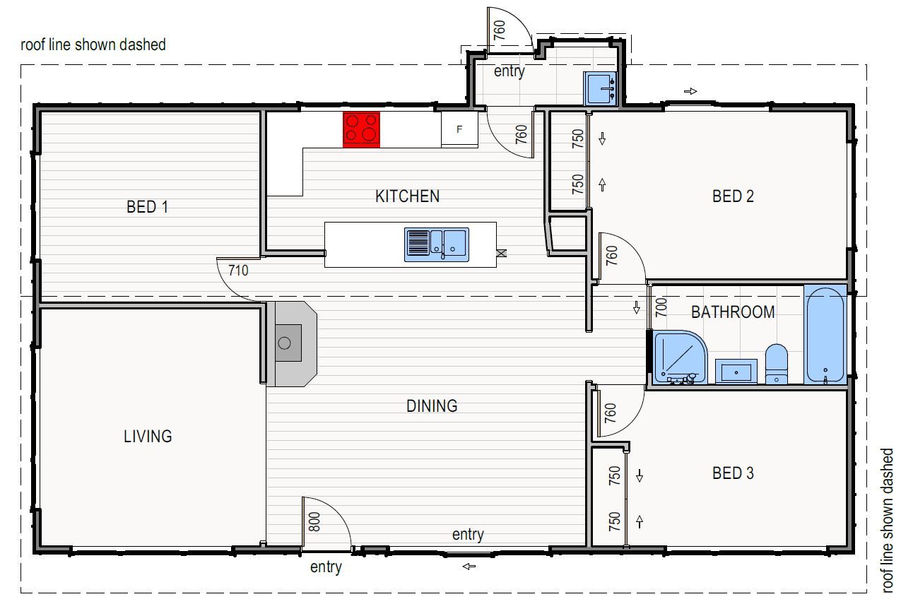
Basic Measurements : 13.820 x 8.645
Total Square Meters: 101 sqm
Available most weekdays and weekends by prior arrangement.
Contact us for more information!
Price will include delivery and foundations to NZ3604 standard on a flat building platform within 100km its New Windsor location.
Price will include delivery and foundations to NZ3604 standard on a flat building platform within 100km its New Windsor location.
Phone 021 229 6116
Email sales@ahlremovals.co.nz